SK hynix gets permits for $98M foundations, as wrangling ramps up in court challenge
Building permits come with no firm start date for $3.87 billion semiconductor facility, even as court cases challenging rezoning produce a contentious flurry.
Support for this edition comes from Wintek Business. Many things require regular checkups to ensure they’re properly functioning. Networks are no different. Do you think about your network often? Are you unsure of how it’s all connected? Get a free network assessment from Wintek Business Solutions. Our experts will help you anticipate issues, learn how to resolve problems and create a network that meets your goals. It costs nothing, so why wait until it costs too much? Schedule your free assessment today at wintekbusiness.com.
SK HYNIX GETS PERMITS FOR $98M FOUNDATIONS, AS WRANGLING RAMPS UP IN COURT CHALLENGE
As lawyers for SK hynix, Purdue Research Foundation and the city of West Lafayette try to fend off a pair of neighbor-driven lawsuits they contend are “delaying one of the largest investments in Indiana history” and residents compare their repeated pleas to reverse a key rezoning decision in 2025 and block the semiconductor facility to their own version of “Groundhog Day,” the South Korean company has secured building permits for foundation work on the $3.87 billion project.
The city on Jan. 26 issued three building permits for foundations on Purdue Research Foundation-owned property at 3800 Yeager Road, totaling $98 million, according West Lafayette records.

The permits, issued through contractor Hi-Tech Engineering Partners, include foundations for:
SK hynix’s office building, at $11 million
The company’s fab, or manufacturing facility, at $68 million.
A central utility building, at $19 million.
The city declined to release a site plan filed with the building permits, saying in a response to a public records request that those documents had been marked as confidential in the application.
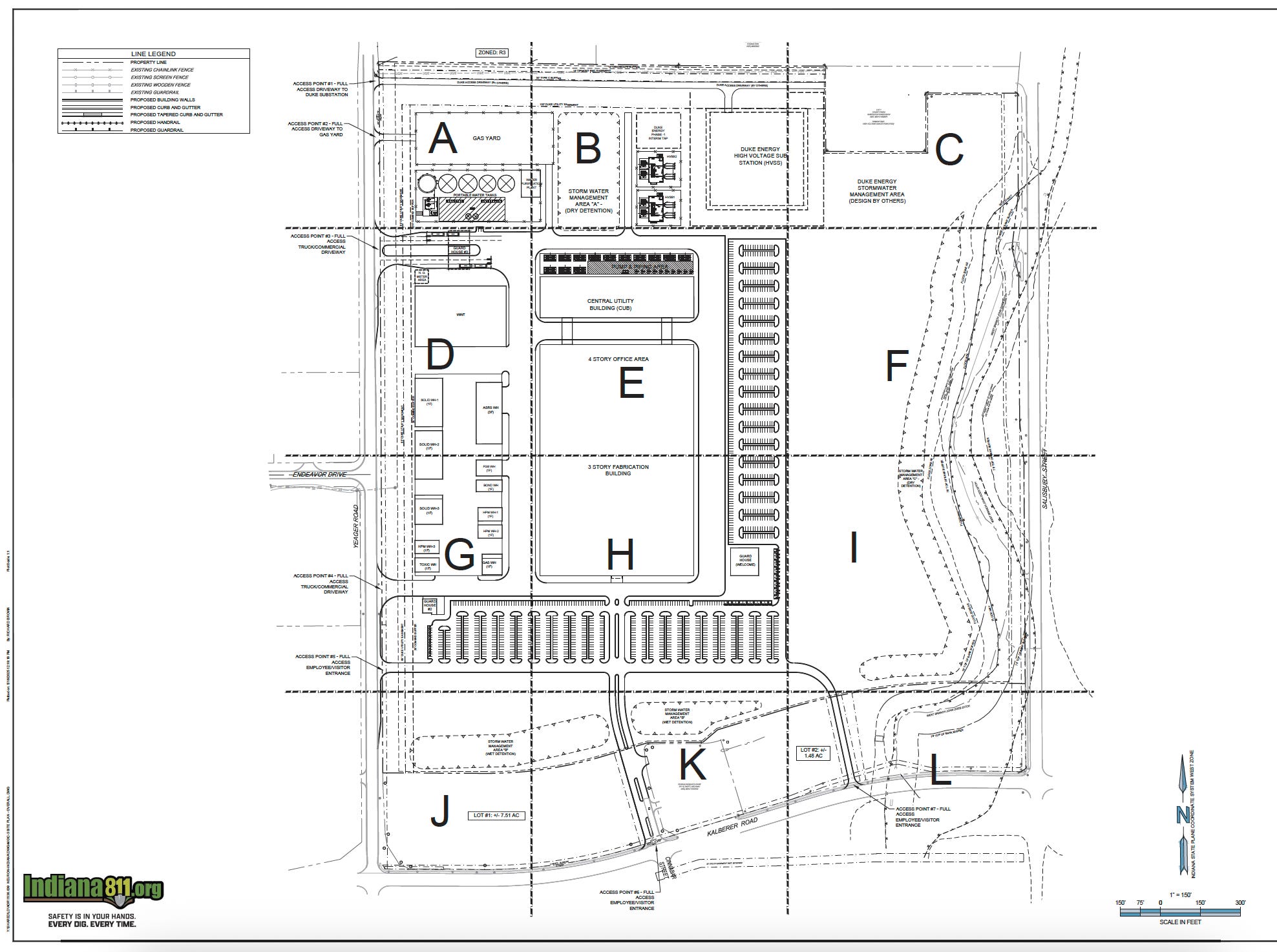
But a site plan revealed during a Tippecanoe County Drainage Board hearing in January showed a layout that corresponds to the foundation work mentioned in the building permits, including a four-story office area, three-story fabrication building and a two-story central utility building on a 133-acre site near Yeager Road.
Company officials didn’t immediately say whether the permits indicated that a groundbreaking was coming.
The permits issued by the city do not give an anticipate project start date. But the permit includes standard language that the permits would expire six months after they were issued “if no inspections have been made” and after 12 months “if the work is discontinued.”
Additional building permits would be required for structures built on those foundations, Jason Hardebeck, the city’s building commissioner, said Tuesday.
Contractors working with SK hynix received a pair of drainage board approvals, one in fall 2025 and another in January, that allowed the company to move dirt and grade the property. Since then, no work has been visible north of Kalberer Road, between Yeager Road and County Road 50 West/Salisbury Street.
The plans shown during a county meeting in January included four curb cuts or entrances to various parts of the campus from Yeager Road, a Duke Energy high voltage substation, an area marked “gas yard,” water purification plant, a fire water storage tank area and pump house, and three guard houses stationed near entrances.
The company’s website lists construction slated to start in early 2026. The facility is expected to be running in late 2028, with up to 1,000 jobs and thousands more from suppliers, assembling high-bandwidth memory chips for use in a growing AI market.
Meanwhile, a court battle continues: The building permits landed as the sides stepped up their sparring about whether plaintiffs in a pair of court challenges should be allowed to ask for stacks of documents from Purdue and local and state agencies not named in the lawsuits.






